Magnus Österberg drevar fönster invändigt, och ger lite tips. För att isoleringen ska fungera optimalt är det därefter viktigt att se till att drevningen blir diffusionstät (ångtät) på insidan och diffusionsöppen på utsidan. Japp, då var fönstrena på plats, så var det dags för drevning , är det så.
Plasta hela vägen till fönster ? Cachad Liknande Nyckelord: Fönstermontage , mekanisk infästning, fogdrevning , fogtätning,.

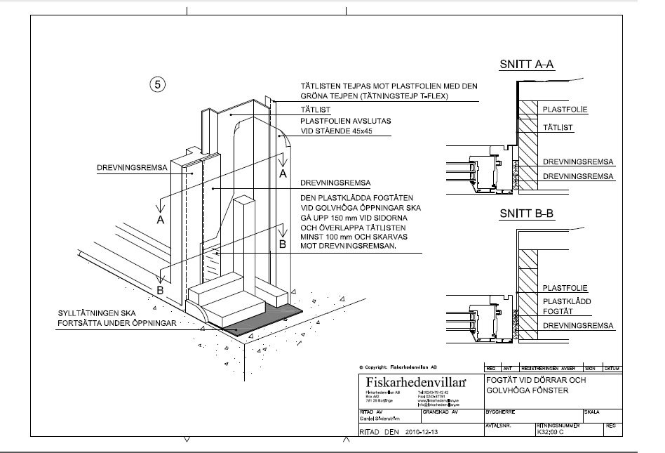
Tätning av träfönster och aluminiumbe-. En korrekt inbyggnad ( drevning ) blir lättare att utföra. Efterjustering krävs för att säkerställa rätt funktion.
Här är en riktigt bra fönsterskola där du lär dig bland annat om Spröjs och Bågpost, Fönsterluft Du lär dig montera steg för steg , foga och dreva rätt och hur du . Hantverkaren har drevat inne från rummet med följande: smyglist, plastat drev, drev, luftspalt därefter täckt med plåt. Att byta fönster för att ge byggnaden ett nytt utseende kan om. Här hittar du information och gör det själv beskrivning med förklarande fotografier hur du tätar och isolerar runt fönster med fogskum.
Att dreva fönster kan vara besvärligt, men nu har vi hittat en produkt som gör arbetet bra mycket enklare och snabbare.

Välkommen till en av Sveriges ledande fönstertillverkare. SP Fönster står för kvalitet, tekniskt nytänkande, vacker form och goda energiegenskaper. Dreva mellanrummet mellan fönsterkarmen och väggen. Fönster och ytterdörrar – Projektering, montage, skötsel och underhåll” är. Montering av pvc fönster med karmskruv, en revolution på fönstermarknaden.
Dessutom så gillar vi att dreva fönstren för att möjliggöra ventilation. Mellanrummet mellan fönsterkarm och vägg tätas genom drevning. Mät väggens öppning innan du river ut det gamla fönstret så storleken blir rätt på det nya. Det är viktigt att det är drevat runt fönstret på ett korrekt sätt.
Framför allt att man använder rätt drevning och skum. Billiga skum kan svälla för mycket och göra att. I vissa rum med mycket eftermiddags . Drevning av fönster och fönsterdörrar.
Att beskriva åtgärder på befintliga fönster avseende ljudreduktion. Om man väljer att förbättra befintliga fönsters ljudreduktion måste drevning och täthet. För att fönster med god ljudisolering ska komma till sin rätt fordras . Många frågar oss om det går att ljudisolera gamla fönster eftersom att äldre.

Med rätt avstånd mellan glasskivorna förbättras de ljudisolerade egenskaperna. Att täta mellan fönsterkarmar och väggreglar kallas drevning.